Trilocale in vendita

Rimini, Via del tulipano - Lagomaggio
€ 179.000
Prezzo aggiornato
3 locali 3 locali
50 Mq 50 Mq
1 bagno 1 bagno

Trilocale in vendita

Rimini, Via del tulipano - Lagomaggio

Descrizione annuncio

Rimini, zona via Praga

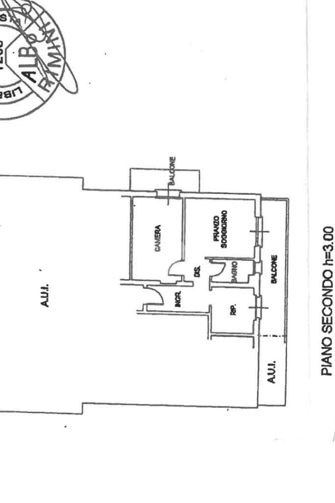
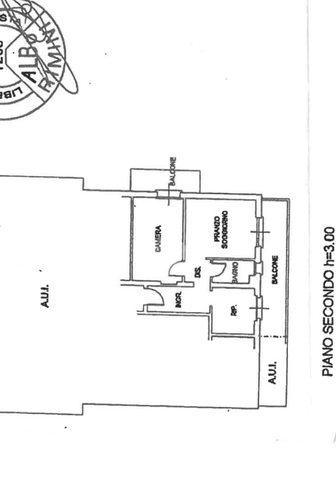
Proponiamo in vendita un appartamento di 50 mq situato al secondo piano di un edificio senza ascensore. L'immobile, costruito negli anni '70, offre una disposizione funzionale degli spazi.

All'ingresso si accede a un luminoso soggiorno con cucina a vista, ideale per momenti di convivialità.

La zona notte comprende una spaziosa camera matrimoniale e uno studio, perfetto per chi lavora da casa o necessita di uno spazio aggiuntivo.

Il bagno è finestrato, garantendo luce naturale e ventilazione.

Due terrazzi completano la proprietà, offrendo spazi esterni per il relax.

La posizione è strategica, a soli 5 minuti a piedi dal mare, permettendo di godere appieno delle bellezze della costa riminese. Un ulteriore vantaggio è l'assenza di spese condominiali, rendendo questa soluzione particolarmente interessante.

Mostra tutto

Nelle vicinanze

Trasporto pubblico Trasporto pubblico
Rimini
Rimini
1,7 Km
Goldoni
Goldoni
210 m
Scilla
Scilla
230 m
Trasporto pubblico
2,5 Km
Ricariche auto elettriche Ricariche auto elettriche
Hotel Diplomat Palace
320 m
Hotel Cristallo
340 m
Eneldrive Bagno 72
440 m
Eneldrive Bagno 44
890 m
Eneldrive Bagno 87
1,2 Km
Scuole Scuole
Scuole
570 m
Scuola Primaria "Michele Griffa"
690 m
Scuola Primaria Boschetti-Alberti
800 m
Liceo Scientifico Albert Einstein
870 m
Scuola Primaria "Francesco Crispi"
1,0 Km
Farmacia Farmacia
Farmacia
340 m
Chemia fort. Stefano G. Bianchi
480 m
Parafarmacia
640 m
Al Lido
1,0 Km
Farmacia Regina
1,1 Km
Ospedali Ospedali
Ospedale dei villeggianti
420 m
Ospedale Infermi Rimini
1,0 Km
Supermercati Supermercati
Grilli
260 m
crai
560 m
da Diego
630 m
Coop
680 m
Conad
850 m
Negozi Negozi
Xsports
470 m
DeSpar
640 m
Negozi
950 m
SempreSemprini
1,0 Km
Positano
1,2 Km
Bar Bar
The old bull&bush
190 m
Long street bar
300 m
Soleluna
370 m
Blow Up disco
990 m
Bar Milano
1,2 Km
Ristoranti Ristoranti
Poker
210 m
Rimet 70
280 m
Joe's - Ristorante & Pizzeria
310 m
da Lele
330 m
Libeccio
390 m
Mostra tutto

Caratteristiche

Rif.:
61153593
Piano:
2 di 2 (Piano alto)
Terrazzi:
2
Camere da letto:
1
Arredamento:
Completo
Condizionamento:
Assente
Mostra tutto
Prezzo Prezzo
€ 179.000
Rata mutuo Rata mutuo
€ 844 / mese
Spese annue Spese annue
€ 0
Proponi il tuo prezzoProponi il tuo prezzo

Classe Energetica

G
G
G
G
G
G
G
G
G
EP globale non rinnovabile:
250.00 kW h/m² anno
EP globale rinnovabile:
0.00 kW h/m² anno
Anno di costruzione:
1970
Riscaldamento:
Autonomo
Tipo impianto:
A radiatori
Tipo alimentazione:
Metano

Prezzo ridotto di €1 (11%%)

Ti interessa visionare l'immobile?

Fissa un appuntamento  Fissa un appuntamento

Richiedi informazioni

Clicca su Leggi per aprire l'informativa
* Questi campi sono obbligatori

Calcola il tuo mutuo

Semplice e senza impegno
Anticipo

( % )
Mutuo

( % )

pochi semplici passi

inserisci i tuoi dati
Questionario completato
Grazie per aver richiesto un appuntamento senza impegno con un nostro Consulente del Credito e Assicurativo.

Hai inserito correttamente tutti i dati necessari e a breve riceverai una e-mail con un link da convalidare per inviare i tuoi dati.
Affiliato
Immobiliare Amarcord Srl
Via Flaminia, 169/E 47923 Rimini (RN)

Il nostro staff


  • Maksym Babalyuk
    Collaboratore

  • Ermes Bertozzi
    Affiliato

  • Fabiana Gagliardi
    Collaboratrice

  • Sara Raggi
    Coordinatrice

  • Francesco Salvatori
    Collaboratore
Via Flaminia, 169/E 47923 Rimini (RN)
Zona: Rimini - Lagomaggio - Bellariva - Ospedale - Colonella
Mostra su mappa
Orari: dal lunedì al venerdì dalle 09.00 alle 13.00 e dalle 15.30 alle 19.30.Il sabato dalle 09.00 alle 13.00. Domenica su appuntamento
Affiliato
Immobiliare Amarcord Srl
Via Flaminia, 169/E 47923 Rimini (RN)

2026 Tecnocasa Franchising S.p.A. - P. IVA 08365160152 - Via Monte Bianco 60/A 20089 Rozzano (MI). Ogni agenzia ha un proprio titolare ed è autonoma. Privacy policy | Policy utilizzo | Cookie policy